
รีวิวฉบับที่ 492 … โครงการ Lumpini MegaCity Bangna (ลุมพินี เมกะซิตี้-บางนา) เป็นคอนโดที่มีจำนวนยูนิตมากเป็นอันดับ 2 ของ LPN มีถึง 4,047 ยูนิตรองจากอันดับหนึ่งอย่าง LPN Township รังสิต-คลอง1 ที่มี 10,000 ยูนิต โครงการนี้เปรียบเสมือนโครงการนำร่องประเภทเน้นจำนวนยูนิตเยอะก่อนเปิดตัว LPN Township ก็ว่าได้ โครงการที่มีจำนวนยูนิตเยอะขนาดนี้ย่อมมีข้อดีข้อเสียในตัวมันอยู่แล้ว เราลองมาดูกันดีกว่าครับว่า LPN เค้าจะบริหารจัดการโครงการลักษณะนี้กันอย่างไร ヾ(^-^)ノ~♪
Fact @ 25 July 2012
- Lumpini MegaCity Bangna (ลุมพินี เมกะซิตี้-บางนา)
- L.P.N. Development Co.,Ltd
- SUPER ECONOMY CLASS (อ่านรายละเอียดของ Segment คอนโดได้ที่นี่)
- คอนโด High Rise 18, 28, 29 ชั้น 5 อาคาร 4,046 ยูนิต
- ยูนิตต่อชั้นสูงสุด 46 ยูนิตที่ตึก D
- จำนวนยูนิตต่ออาคารสูงสุด อาคาร D 1,069 ยูนิต
- ที่จอดรถทั้งโครงการประมาณ 1,540 คัน รวมจอดซ้อนคัน คิดเป็น 38.06%
- ที่ดินประมาณ 17 ไร่เศษ
- สร้างเสร็จพร้อมอยู่
- 1 Bedroom 22.5 – 29.5 ตารางเมตร
- 2 Bedroom 45 ตารางเมตร
- ราคาเริ่มต้นประมาณ 1.1 ล้านบาท
- ราคาต่อตารางเมตรประมาณ 40,000 บาท
- http://www.lpn.co.th/lumpini2011/lm-bn/index.php
- Call Center 02-689-6888
- Sales Office 02-316-2111
เพียงแค่การกด Like ก็เท่ากับการสนับสนุนข้อมูลเชิงลึกจาก Think of Living แล้วครับ
เจาะลึกเรื่องทำเลที่ตั้ง
พิกัด : 13.655078,100.671918
แผนที่จากทางโครงการ
LPN MegaCity Bangna (ลุมพินี เมกะซิตี้-บางนา) เป็นโครงการที่ตั้งอยู่บนถนน บางนา-ตราดบริเวณทางแยกที่ตัดกับถนนกาญจนาภิเษก และอยู่เลย Mega Bangna มาประมาณ 1.1 กิโลเมตร เส้นทางหลักที่ใช้จะเป็นถนน บางนา-ตราด และเชื่อมต่อไปยังถนนได้หลายสายเช่น ถนนศรีนครินทร์, ถนนกาญจนาภิเษก, และ ถนนสุขุมวิท ทางด่วนที่สามารถใช้งานได้ก็มี ทางด่วน-บางนา และ ทางด่วนวงแหวนอุตสาหกรรม
สภาพแวดล้อมรอบๆโครงการ มีห้างสรรพสินค้าที่ใกล้เคียงคงหนีไม่พ้น Mega Bangna เพราะอยู่ใกล้ที่สุดแต่ต้องไปกลับรถ 1 รอบก่อนนะครับแล้วมาเข้าห้างโดยใช้สะพานกลับรถหน้าห้างซึ่งมีการเชื่อมต่อทางเข้าห้างขจากตัวสะพานเลย ถือว่าสะดวกอยู่เหมือนกันครับระยะทางรถวิ่งขาไปจากโครงการประมาณ 4.7 กม.และขากลับประมาณ 1.1 กม. ส่วนอีกห้างคือ เซ็นทรัลบางนา อันนี้ก็วิ่งง่ายๆครับออกจากโครงการก็ตรงอย่างเดียวเลยแล้วใช้สะพานกลับรถที่อยู่เลยหน้าเซ็นทรัลไปหน่อย ระยะทางขาไปอยู่ประมาณ 6.5 กม.และขากลับอยู่ที่ 6.8 กม. ส่วน Hyper Market ก็มีให้เลือกเยอะแต่ถ้าจะเอาใกล้ที่สุดจะเป็น Tesco Lotus Extra ฝั่งตรงข้ามระยะทางขับประมาณ 4.3 กม.และขากลับประมาณ 1.6 กม. ส่วน Big C ก็อยู่ติดกับ เซ็นทรัลบางนา แต่อาหารการกินในระยะใกล้แบบเดินได้ไม่มีนะครับจะมีแค่ 7Eleven ที่อยู่ใต้อาคาร A เท่านั้น
การเดินทางเริ่มจากเซ็นทรัลบางนา ตรงไปกลับรถแล้วเข้าโครงการเลย ถ้าใครทำงานบนเส้นบางนาก็ถือว่าสะดวกมากเลยครับ
เรามาเริ่มต้นกันที่เซ็นทรัล บางนา นะครับ
ถัดมาจะเจอ Big C ติดๆกันเลย ตรงนี้มีทางออกจากถนนหลักเป็นทางออกสุดท้ายสำหรับขึ้นสะพานเข้าเส้นศรีนครินทร์(ไปทางเทพารักษ์)
ก่อนถึงแยกจุดตัด ถนน ศรีนครินทร์ มีจุดสังเกตคือ SB Design Square
ถึงจุดตัดถนนศรีนครินทร์ให้ตรงไป
เลยแยกมาหน่อยจะเจอกับ Index living mall
ถ้าใครวิ่งด้านในถนนหลักให้สังเกตปั๊มน้ำมัน ESSO ที่มี Mac Drive-Thru เพื่อเตรียมออกจากทางหลักขึ้นสะพานกลับรถ
สะพานกลับรถจะอยู่ด้านหน้าของ Tesco Lotus พอดี สะพานนี้มีทางเชื่อมต่อเข้า Mega Bangna ได้โดยตรงถ้ามาจากโครงการก็ใช้สะพานนี้ได้เลยครับ
เมื่อกลับรถมาแล้วจะเจอกับร้านขายวัสดุก่อสร้างขนาดใหญ่ชื่อว่า ไทวัสดุ
ตรงมาเรื่อยๆจนเจอกับหมู่บ้านไทยสมุทร จากจุดนี้จะเริม่เห็นตัวโครงการ LPN MegaCity Bangna เด่นมาแต่ไกลเลยครับ
รูปนี้ถ่ายจากสะพานลอยห่อนถึงโครงการจะเห็นตัวอาคารครบทั้ง 5 อาคารเลย
สำนักงานขายอยู่บริเวณทางเข้าโครงการ
สะพานลอยด้านหน้าทางโครงการเป็น LPN สร้างให้เป็นสาธารณะประโยชน์พร้อมป้ายรถเมล์
เจาะลึกตัวโครงการ
โครงการนี้มีขนาดค่อนข้างใหญ่เพราะมีอาคารพักอาศัยอยู่ถึง 5 อาคารและเป็น High Rise ทั้งหมด ตัวอาคารจะวางเรียงกันตามความยาวของที่ดิน โดยอาคาร A จะมีรูปทรงเป็นตัว L และอีก 4 อาคารที่เหลือ(B, C, D และ E)จะมีรูปทรงเป็นตัว H จากแปลนด้านซ้ายจะเป็นถนนทางเข้าหลักของโครงการแล้วมีทางแยกเข้าที่จอดรถของแต่ละอาคาร บริเวณถนนหลักมีที่จอดส่วนกลางให้ลูกบ้านเพิ่มเติม
พื้นที่สวนในโครงการถือว่าจัดมาให้เยอะกำลังดีถ้าเทียบกับจำนวนยูนิต พื้นที่ด้านขวาทั้งหมดจะเป็นสวนที่ต่อเนื่องกัน ถึงจะไม่มีการทำทางวิ่งให้อย่างชัดเจนแต่ก็สามารถวิ่งรอบๆสวนได้สบาย ทุกอาคารจะมีสวนอยู่ในช่วงที่เป็น Court ยกเว้นอาคาร A ที่อยู่ด้านหน้าสุด ดังนั้นห้องที่หันมาทางด้านในก็จะได้พื้นที่สวนไปในตัวด้วย สวนที่ใหญ่ที่สุดจะเป็นสวนของอาคาร E ถ้านับเฉพาะสวนที่อยู่ใน Court
พื้นที่ระหว่างอาคารก็มีแบ่งการใช้งานเป็น 3 แบบคือเป็นที่จอดรถ, สระว่ายน้ำ และ สวนสาธารณะ พื้นที่ระหว่างอาคาร A กับอาคาร B และอาคาร C กับ D จะจัดเป็นที่จอดรถส่วนกลาง พื้นที่ระหว่างอาคาร B กับอาคาร C จะมีอาคาร 2 ชั้นที่เป็นตัว Club House ของโครงการโดยสระว่ายน้ำจะอยู่ที่ชั้นล่างและ Fitness จะอยู่ที่ชั้น 2 ด้านหน้า Club House จะเป็นสวนสาธารณะและลานกว้างไว้นั่งพักผ่อนมีโต๊ะและเก้าอี้มาให้ และมีสนามเด็กเล่นมาให้นิดหน่อย พื้นที่ระหว่างอาคาร D กับอาคาร E จะมีลานกว้างขนาดใหญ่เรียกว่า ลานรวมใจ ไว้สำหรับทำกิจกรรมในวันสำคัญต่างๆ และมีโต๊ะเก้าอี้ให้นั่งเล่นอีกด้วย
พื้นที่รอบๆของโครงการเป็นที่โล่งตลอดระยะ 600 เมตรครับเลยไปอีกสักหน่อยก็มีตึกสูงอยู่บ้างแต่ก็ไม่มากถ้าเทียบกับพื้นที่ๆ ยังเป็นที่ดินว่างอยู่ความหนาแน่นบริเวณนี้ค่อนข้างต่ำทำให้ไม่มีปัญหาเรื่องวิวรอบด้านเท่าไหร่ส่วนใหญ่วิวที่เห็นจะเป็นวิวของอาคารข้างเคียงมากกว่า
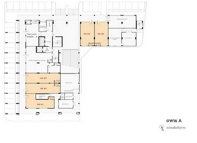
ผังอาคาร A เป็นรูปตัว L ชั้นล่างพื้นที่สีส้มจะเป็นร้านค้า ห้องหน้าสุดตอนนี้เป็น 7Eleven ส่วนช่วงกลางอาคารเป็นสำนักงานนิติบุคคล ห้องสีส้มด้านบนตอนนี้ทำเป็นห้องตัวอย่างและห้องที่อยู่ด้านมุมขวาบนสุดเป็นห้องอเนกประสงค์ ชั้น 2 และ 3 จะเป็นที่จอดรถชั้นอยู่อาศัยจะเริ่มตั้งแต่ชั้น 4 เป็นต้นไป
ผังอาคาร A ชั้น 4 – 18 อาคาร A มีทั้งหมด 18 ชั้น 405 ยูนิตซึ่งขายหมดแล้วครับ ขนาดของห้องพักอาศัยส่วนใหญ่จะเป็น 26 ตารางแมตร ห้องหัวมุมจะเป็นขนาด 26.5, 29 และ 29.5 ตร.ม. อาคารนี้จะเป็นอาคารเดียวที่สามารถลงจากห้องพักมาที่จอดรถได้เลยไม่ต้องไปขึ้นลิฟท์ของอาคารจอดรถอีกที จำนวนยูนิตต่อชั้นที่มากที่สุดคือ 27 ยูนิต
ผังอาคาร B ชั้นล่าง พื้นที่ส่วนใหญ่จะเป็นลานจอดรถ ซึ่งลานจอดรถนี้จะมีครึ่งชั้นใต้ดินเพิ่มขึ้นมาเอาไว้จอดรถจักรยานและมอเตอร์ไซด์ แบ่งเป็นสัดส่วนอย่างชัดเจน ตรงนี้ถือว่าใส่ใจรายละเอียดดีครับหลายๆโครงการมักพลาดเรื่องไม่มีที่จอดรถจักรยาน ลิฟท์ของอาคารนี้มีทั้งหมด 6 ตัวเป็นลิฟท์โดยสาร 4 ตัว, ลิฟท์ขนของ 1 ตัว และลิฟท์ลานจอดรถอีก 1 ตัว ถ้าหันหน้าเข้าโถงลิฟท์ด้านซ้ายจะเป็นห้องตู้จดหมายส่วนด้านขวาเป็นห้องเครื่องซักผ้าและอบผ้า ส่วนลิฟท์ Service ของโครงการนี้จะเข้าจากทางห้องตู้จดหมาย Lobby ของโครงการนี้มีขนาดที่กว้างขวางมาก ทำให้ไม่รู้สึกอึดอัดเวลามีลูกบ้านเข้า-ออกในชั่วโมงเร่งด่วน ส่วน 2 ห้องที่อยู่บนสุดจะเป็นห้องสมุดและห้องอเนกประสงค์
ผังอาคาร B ชั้น 3 – 6 เป็นชั้นที่มีห้องพักอาศัยและที่จอดรถอยู่ด้วยกัน ดังนั้นชั้นต่างๆที่มีที่จอดรถเชิ่อมถึงจะไม่ค่อยมีความเป็นส่วนตัวสักเท่าไหร่ เพราะลูกบ้านที่ใช้รถยนต์ส่วนตัวเวลาจะเข้า-ออกก็ต้องผ่านลงมาที่ชั้นเหล่านี้ แต่จำนวนยูนิตก็น้อยลงเหลือแค่ 13 ยูนิต/ชั้น
ผังชั้น 7 ตั้งแต่ชั้นนี้เป็นต้นไปจะเริ่มเป็นที่พักอาศัยเต็มทั้งชั้นห้องส่วนมากจะเป็นห้องแบบ 26 ตารางเมตร
ผังอาคาร B ชั้น 8 – 28 ผังชั้นนี้จะเหมือนกับชั้น 7 แต่จะต่างกันตรงที่มีจำนวนห้องเพิ่มขึ้นมา 1 ห้อง การที่มีห้องเพิ่มขึ้นมา1 ห้องเป็นเพราะเสียพื้นที่ให้กับห้องเครื่องของลิฟท์อาคารจอดรถ จำนวนยูนิตที่มากที่สุดต่อชั้นคือ 37 ยูนิต
ผังอาคาร C ชั้นล่าง อาคารนี้จะไม่มีห้องสมุดหรือห้องอเนกประสงค์แต่จะมีห้องว่างไว้สำหรับทำร้านค้ามาให้ 2 ห้อง และมีห้องพักอาศัยตั้งแต่ชั้นนี้เลย ซึ่งความเป็นส่วนตัวอาจจะลดลงไปบ้างแต่ก็ยังดีที่โครงการออกแบบให้ระดับพื้นของห้องพักสูงกว่าพื้นที่ส่วนกลางอยู่ประมาณ 1 เมตรและสุดทางเป็นทางตันทำให้ไม่มีคนเข้ามารบกวน
ผังอาคาร C ชั้น 3 -7 มีห้องพักอาศัยอยู่บางส่วนมีทั้งหมด 17 ห้อง
ผังอาคาร C ชั้น 8 จากในผังอาคารที่มีรูปทรงเป็นตัว H ทั้งหมดฝั่งซ้ายบริเวณ Court ตรงกลางจะเป็นที่จอดรถวิวจะไม่สวยเหมือนฝั่งขวา เพราะฝั่งขวาของทุกอาคารจะเป็นสวนสาธารณะ
ผังอาคาร C ชั้น 9 – 29 ห้องส่วนใหญ่ยังคงเป็นแบบ 26 ตารางเมตร และมีจำนวนยูนิตต่อชั้นสูงสุดอยู่ที่ 41 ยูนิต
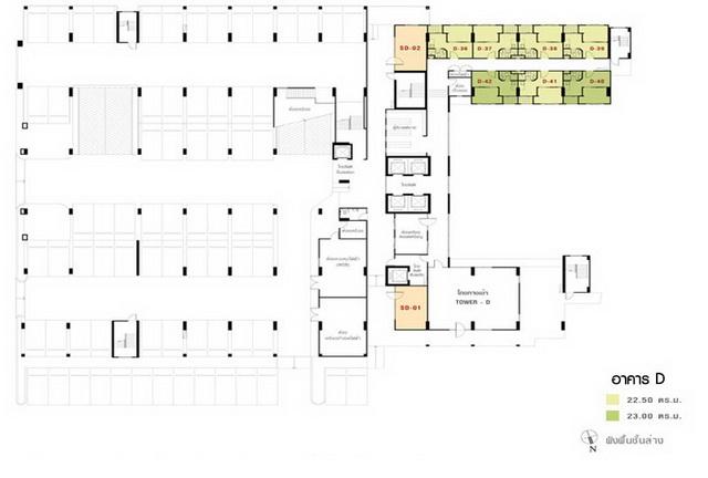
ผังอาคาร D ชั้นล่าง การวางผังหลักๆยังคงเหมือนกับอาคาร C อยู่
ผังอาคาร D ชั้น 3 – 5
ผังอาคาร D ชั้น 6
ผังอาคาร D ชั้น 7 – 28 อาคาร D และอาคาร E ขนาดของห้องพักส่วนใหญ่จะเป็น 22.5 และ 23 ตารางเมตร ทำให้จำนวนยูนิตสูงสุดต่อชั้นอยู่ที่ 44
ผังอาคาร E ชั้นล่าง
ผังอาคาร E ชั้น 3 มีห้องพัก 20 ยูนิต
ผังอาคาร E ชั้น 4
ผังอาคาร E ชั้น 5 – 18 จำนวนยูนิตต่อชั้นสูงสุดคือ 46 ยูนิต ถึงแม้จำนวนยูนิตรวมของอาคารจะน้อยกว่าอาคาร D แต่กลับมีจำนวนยูนิตต่อชั้นสูงที่สุด
ก่อนที่จะไปดูบรรยากาศจริงของโครงการ ขอพาไปดูตัวเลขอัตราส่วนต่างๆว่าเป็นอย่างไรบ้าง
ทางเข้าหลักของโครงการจะอยู่ด้านข้างของอาคาร A ผมจะพาไปชมบนถนนหลักของโครงการแล้วอ้อมไปยังสวนด้านหลังแล้วเดินกลับเข้ามาดู Club House นะครับ
ใต้อาคาร A จะมี 7Eleven อยู่ด้านหน้าสุดของโครงการ
สำนักงานขายไม่ได้อยู่ภายในอาคารแต่สร้างเป็นสำนักงานแยกออกมา
ด้านหน้าโครงมีอาคารสำหรับขนย้ายเศษขยะของโครงการ
รั้วด้านหน้าโครงการถูกทำให้เป็นที่นั่งพักผ่อน
หันหน้าออกไปจากโครงการ ช่วงทางเข้าจะมีเกาะกลางแบ่งทางสัญจรของรถอยู่
ด้านในโครงการจะเห็นอาคารพักอาศัยขนาดใหญ่เรียงกันอยู่
ตัวอาคารใช้สีโทน น้ำตาล-ครีม ตัดด้วยสีเขียว ส่วนรูปร่างหน้าตาอาคารก็เป็นแบบ Signature LPN เลยครับ ^___^
ถนนภายในโครงการจะเป็นถนน 2 เลนวิ่งสวนกัน
ด้านหน้าจะมีบริการรถตู้ไปสถานีรถไฟฟ้า BTS อุดมสุข ค่าบริการ 20 บาทต่อเที่ยว
ลานจอดรถส่วนกลางระหว่างอาคาร A กับอาคาร B
เนื่องจากถนนภายในโครงการเป็นเส้นตรงยาวตั้งแต่หน้าสุดยันท้ายสุดของโครงการ ทางโครงการเลยทำลูกระนาดเป็นระยะเพื่อชลอความเร็วของรถที่สัญจรภายในโครงการ
ที่จอดรถสำหรับคนพิการ
ลานจอดรถภายในอาคารจะมีที่จอดรถสำหรับจักรยานลงไปใต้ดินครึ่งชั้น
เข้ามาถึงช่วงที่เป็นสระว่ายน้ำ(อยู่ด้านซ้ายมือ)จะมีการปลูกต้มไม้และไม้พุ่มเพื่อความเป็นส่วนตัวของลูกบ้าน
ลานรวมใจระหว่างอาคาร D กับอาคาร E
เกือบครึ่งนึงของยูนิตในโครงการนี้จะเป็นห้องที่หันหน้าเข้าหากัน ระยะห่างแต่ละอาคารจะเท่ากันอยู่ที่ 24 เมตร
รอบๆอาคารจะมีการปลูกต้นไม้และทำม้านั่งให้
รั้วรอบโครงการสูง 1.5 เมตรและรั้วเพิ่มเติมอีก 1 เมตร
สุดถนนหลักของโครงการด้านขวาคืออาคาร E
มุมมองไปยังด้านหน้าโครงการ
ถนนหลักจะอ้อมมาด้านหลังอาคาร E ครึ่งนึงและส่วนที่เหลือจะเป็นสวนสาธารณะ
ตรงจุดนี้จะมีทางเข้าภายใต้อาคาร
สวนสาธารณะด้านหลังมีห้องพักอาศัยของอาคาร E ที่ชั้น 1 ราวเหล็กของระเบียงก็จะหนาแน่นกว่าชั้นอื่นๆ
มุมมองจากรอยต่อของสวนไปทางลานจอดรถ
พื้นสวนบางส่วนจะเป็นบล็อคตัวหนอน
และพื้นบางส่วนจะเป็นการใส่ Pattern ให้กับพื้น
บริเวณนี้จะมีเครื่องออกกำลังกายกลางแจ้ง
เครื่องออกกำลังกายเครื่องที่ 2
มุมด้านในอีกด้านตกแต่งด้วยกำแพง
สวนด้านข้างโครงการ
บริเวณทางออกฉุกเฉินของทุกอาคารจะมีกล้องวงจรปิดอยู่ทุกทางออก
สวนด้านในอาคาร E
สนามเด็กเล่น
วัสดุพื้นบริเวณนี้จะมีการทาสีเพื่อลดอาการบาดเจ็บ
กลับเข้ามาดูด้านในอาคารกันบ้าง
ทางลาดสำหรับออกมายังสวนสาธารณะ
ร้านค้าภายในโครงการ ซึ่งมีอยู่ทุกอาคารยกเว้นอาคาร B
สำนักงานนิติบุคคลอยู่ใต้อาคาร A
กำแพงของ Lobby จะเป็นบานกระจกกรอบอลูมิเนียม
ทางเชื่อมระหว่างอาคาร A กับ B จะมีห้องตัวอย่างขนาด 22.5 ตร.ม.ให้ดูครับและด้านข้างจะเป็นห้องอเนกประสงค์
ห้องอเนกประสงค์ใต้อาคาร A เวลาทำการ 6 – 22 น.
ภายในห้องอเนกประสงค์
อีกมุมครับ
ด้านในมีกระดานให้ใช้งาน
ด้านหน้ามีมุมหนังสือให้เลือกอ่าน
ทางเดินใต้อาคาร B
ลิฟท์สำหรับขึ้น-ลง ลานจอดรถ
ทางเดินหน้า Club House ระหว่างอาคาร B และ C ด้านขวามือจะเป็นห้องสมุดและห้องอเนกประสงค์
ทางลาดสำหรับขึ้น Club House
สวนตรงกลางก็มีสนามเด็กเล่นเช่นเดียวกัน
ลานตรงกลางหน้า Club house
ตัว Club House เป็นอาคาร 2 ชั้น แยกออกมา
ทางเดินหน้าห้องสมุด
ภายในห้องสมุด
โซฟาสำหรับนั่งดูทีวี
อีกมุมสำหรับดูทีวี
มุมอ่านหนังสือจะอยู่ด้านในสุด
มีชั้นวางหนังสือและกระดานสำหรับเด็กกๆไว้ทำกิจกรรม
วิวสวนจากในห้องสมุด
บริเวณทางเข้าจะมีคอมพิวเตอร์ให้เล่นด้วย
ทางเข้า Club House
ป้ายบอกขนาดสระว่ายน้ำและค่าต่างๆของสระว่ายน้ำ
โถงทางเข้าสระว่ายน้ำ จะมีระแนงกั้นอยู่รูปนี้ถ่ายจากบันไดขึ้นชั้น 2 ครับ
เมื่อขึ้นมาแล้วจะเจอกับห้อง Fitness ครับ
ด้านซ้ายเป็นมีน้ำดื่มไว้บริการให้ลูกบ้านที่มาใช้งาน
ห้องน้ำจะอยู่บนชั้น 2
ระเบียบการใช้ห้องออกกำลังกาย
ภายในห้อง Fitness มีเครื่องออกกำลังกายประมาณ 10 เครื่อง
ห้อง Fitness อีกมุม
มีที่ชั่งน้ำหนักกับส่วนสูงให้ด้วยเพื่อใครใจร้อนอยากรู้น้ำหนักหลังออกกำลังดายเลย ^___^
มุมมองจากชั้น 2 ไปยังสระว่ายน้ำ
ไปดู Lobby เข้าห้องพักกันครับ ทางเดินใต้อาคารจะมี CCTV ติดอยู่เป็นระยะๆ
ห้องน้ำส่วนกลางบริเวณชั้นล่างมีให้ทุกอาคารครับ เวลาลงมาพักผ่อนแล้วต้องการใช้งานไม่ต้องรีบวิ่งกลับไปที่ห้องถือว่าสะดวกดีครับ
ระบบความปลอดภัยของโครงการก็เป็นไปตามมาตราฐานครับ
มาดูที่จอดรถกันต่อนะครับ รูปนี้เป็นทางขึ้นที่จอดรถของอาคาร A
การจอดรถภายในถือว่าทำได้ไม่ยาก ระยะถนนกว้างกำลังดีถ้าจอดซ้อนคันแค่ด้านเดียวถือว่ายังสะดวกอยู่แต่ถ้าจอด 2 ด้านจะใช้งานยากขึ้นครับ
ที่จอดรถจักรยานและจักรยานยนต์ชั้นล่างสุด จัดมาให้เยอะดีครับ
ช่วงรอยต่อระหว่างทางเข้าอาคารก็มีทางลาดให้เช่นเดียวกัน เวลาขนของจะสะดวกขึ้นเยอะครับ
Lobby มีขนาดใหญ่ดีครับ (อาคาร C)
บริเวณเคาน์เตอร์จะมีระเข็นให้ลูกบ้านใช้งานหลายแบบ ส่วนด้านหลังเคาน์เตอร์จะเป็นแผงแสดงระบบต่างๆของอาคาร
ผังแสดงจุดที่มีสัญญาณไฟไหม้ถ้าจุดไหนทำงานจะมีไฟสว่างขึ้น
ระบบแจ้งเหตุเพลิงไหม้
ระบบดับเพลิง
ทางเข้าจาก Lobby ไปยังโถงลิฟท์ต้องใช้ Key Card ครับ
ภายในตู้จดหมาย
ข้างๆห้องตู้จดหมายมีกล่องทิ้งขยะอันตราย
ป้ายแจ้งข่าวสารต่างๆ
ห้องเครื่องซักผ้าและเครื่องกดน้ำ
ทางเข้าที่พักที่อยู่ชั้นล่าง
โถงลิฟท์
ภายในลิฟท์โดยสาร
ลิฟท์ขาด 15 คน
โถงลิฟท์ตามชั้นต่างๆ (ชั้นอื่นๆจะไม่มีต้นไม้นะครับมีเฉพาะชั้นที่มีห้องตัวอย่าง)
ทางเดินบริเวณโถงลิฟท์กว้างประมาณ 4 เมตร
ห้องมิเตอร์น้ำและไฟฟ้า
ทางเดินหน้าห้องพักกว้าง 1.4 เมตร
ทางหนีไฟระหว่างห้องพัก
วิวด้านทิศตะวันตก
วิวด้านถนนบางนา-ตราด
วิวด้านตะวันตกเฉียงใต้
วิวด้านทิศใต้ รูปนี้ถ่ายด้วย PhotoSphere นะครับมุมจะดูแปลกๆหน่อย
เสียงรบกวนจากถนนบางนา-ตราดที่อาคาร C ยังคงมีอยู่แต่ไม่ดังมาก ถ้าเป็นอาคาร A นี่เจอหนักเลยครับ
วิวจากอาคาร A ส่วนที่เป็นที่จอดรถ
วิวด้านทิศตะวันออก ตอนกลางคืนครับ
ก่อนไปดูห้องตัวอย่างเอาวิวส่วนกลางตอนกลางคืนมาฝากครับ
บรรยากาศโดยรวมถือว่าทำได้เรียบร้อยและมีรายละเอียดต่างๆที่ดีสำหรับโครงการในระดับราคานี้ครับ
สรุปสิ่งอำนวยความสะดวก
- สระว่ายน้ำ 1 สระขนาด 8.8 x 22.6 เมตรโซนเด็กลึก 0.6 เมตรและโซนผู้ใหญ่ 1.2 เมตร
- ห้องออกกำลังกาย 1 ห้อง เครื่องออกกำลังกายประมาณ 10 เครื่อง
- สวนหย่อมขนาดใหญ่รอบโครงการ และลานกิจกรรม
- ลิฟท์โดยสาร 2 ตัว ต่อหนึ่งอาคาร (A และ E)
- ลิฟท์โดยสาร 4 ตัว ต่อหนึ่งอาคาร (B, C และ D)
- อัตราส่วนลิฟท์รวมทั้งโครงการ 258 : 1
- อัตราส่วนลิฟท์ อาคาร A 202 : 1
- อัตราส่วนลิฟท์ อาคาร B 216 : 1
- อัตราส่วนลิฟท์ อาคาร C 248 : 1
- อัตราส่วนลิฟท์ อาคาร D 267 :1
- อัตราส่วนลิฟท์ อาคาร E 357 : 1
- Service Lift 1 ตัว/อาคาร
- ที่จอดรถ 1,540 คัน คิดเป็น 38.06%
- ระบบ CCTV / Access Card
Product Walkthrough
แบบห้องมีทั้งหมด 5 แบบแต่ห้องตัวอย่างมีให้ดู 1 ห้องคือขนาด 22.5 ตร.ม.
แบบ 22.5 ตาราเมตร 1 ห้องนอน 1 ห้องน้ำ
แบบ 25 ตารางเมตร 1 ห้องนอน 1 ห้องน้ำ
แบบ 26 ตารางเมตร 1 ห้องนอน 1 ห้องน้ำ
แบบ 28.5 ตารางเมตร 1 ห้องนอน 1 ห้องน้ำ
แบบ 29.5 ตารางเมตร 1 ห้องนอน 1 ห้องน้ำ
แบบ Combined 45 ตารางเมตร 2 ห้องนอน 2 ห้องน้ำ
มาดูห้องตัวอย่างแบบ 22.5 กันก่อนนะครับ ผมจะพาให้ดูทั้งห้องที่ตกแต่งแล้วและห้องเปล่าเพื่อเปรียบเทียบกันไปด้วย ห้องแบบ 22.5 ตารางเมตรนี้เรียกได้ว่าถอดแบบมาจากห้องขนาด 26 ตร.ม.เป๊ะๆเลยครับแถมการจัดวาง Function ต่างๆในห้องสามารถใส่มาได้ครบแต่ระยะการใช้งานและพื้นที่จะแคบกว่าหน่อย ผังห้องจะเป็นทรง 4 เหลี่ยมผืนผ้าแบบห้องจะมีหน้ากว้างอยู่ที่ 5.2 เมตร การจัดวางเฟอร์นิเจอร์จึงทำได้ไม่ยากเพราะ LPN วางผังห้องมาให้ค่อนข้างลงตัวแล้ว โซนแรกที่เจอคือห้องนั่งเล่น และห้องนอนอยู่ถัดไปมีประตูกระจกกั้นแบบเลื่อน 3 ตอน การขายเป็นแบบ Fully Fitted นะครับเป็นห้องเปล่า, ฉากกั้นห้องนอน, เคาน์เตอร์ครัวและตู้เสื้อผ้า Built-in
ตำแหน่งนั่งดูทีวีมีระยะเหลือเฟือครับ
ระยะวางโซฟาที่เห็นสามารถวางโต๊ะกลางได้อีกตัวแล้วไม่อึดอัดไปครับส่วนโต๊ะเขียนหนังสือจะเล็กไปหน่อย
มุมทานอาหารไม่สามารถวางเป็นโต๊ะนั่งหันหน้าเข้าหากันได้นครับถ้าวางจะไม่เหลือพื้นให้เดินเท่าไหร่
มุมของห้องน้ำถูกปาดมุมเพื่อให้บรรยากาศพื้นที่ของส่วนกลางดูไม่แคบจนเกินไป
มุมมองจากระเบียงไปยังภายใน
ห้องนอนถูกกั้นด้วยบานเลื่อนกระจก 3 ตอนซึ่งทช่วยให้ห้องดูโปร่งและกว้างกว่าทำเป็นกำแพงทึบ
มือจับเป็นเหลี่ยมมาเลยครับดูไม่ค่อยเป็นมิตรให้จับสักเท่าไหร่แต่การใช้งานพื้นฐานก็ไม่มีปัญหาอะไรครับ
หน้าต่างมีขนาดไม่ใหญ่มากเป็นบานเลื่อนเปิดคู่
กลอนแบบมาตรฐานทั่วไป
รอยต่อระหว่างพื้นมีรางเลื่อนติดตั้งอยู่แต่ไม่สูงมากเวลาเดินไม่ติดขัดอะไร วัสดุพื้นเป็นพื้นไม้ลามิเนต
เตียงที่เห็นเป็นขนาด 5 ฟุตมีที่เหลือข้างเตียงริมหน้าต่างไม่เยอะ
พื้นที่ปลายเตียงเหลือไม่เยอะเช่นกันถ้าเปิดประตูตู้เสื้อผ้าก็เดินไม่ได้ครับ ตู้เสื้อผ้าแถมมาให้นะครับ
มือจับจะใช้งานยากหน่อยนะครับ
มุมมองไปยังหน้าห้อง
ชุด Built-in ครัวมีมาให้ทั้งชุดบนและล่าง
อ่างล้าง
ช่องเปิดของชุดล่าง
ระเบียงมีขนาดพอวางเครื่องซักผ้าได้ 1 เครื่องและคอมเพรสเซอร์แอร์ 2 เครื่อง
สุขภัณฑ์ห้องน้ำเป็นแบธรรมดาทั่วไปครับ
เคาน์เตอร์ห้องน้ำเป็นไฟเบอร์เข้ารูป
มุมที่ถูกปาดหายไปทำให้ชั้นวางของหายไปนิดหน่อยครับ
พื้นที่อาบน้ำจะเหลือไม่เยอะครับ
ฝักบัวอาบน้ำ
ในห้องน้ำมีพัดลมดูดอากาศมาให้
ต่อไปมาดูห้องเปล่ากันบ้าง รูปนี้เป็นห้องนอนนะครับ
มุมมองไปทางปลายเตียง
มุมมองจากในห้องนอน แบบของห้องเปล่าจะกลับด้านกับห้องที่ตกแต่งครับ
ราคาและเงื่อนไขการขาย @ 14/12/2013
- 1 ห้องนนอน อาคาร C ชั้น 3-15 ห้อง 01,41 เนื้อที่ 25 ตารางเมตร ราคา 1.05 ล้านบาท หรือประมาณ 42,000 บาทต่อตารางเมตร
- 1 ห้องนนอน อาคาร C ชั้น 8-15 ห้อง 05-13 เนื้อที่ 26 ตารางเมตร ราคา 1.21 ล้านบาท หรือประมาณ 46,500 บาทต่อตารางเมตร
- 1 ห้องนนอน อาคาร D ชั้น 7-28 ห้อง 16, 23 เนื้อที่ 22.5 ตารางเมตร ราคา 1.09 ล้านบาท หรือประมาณ 48,400 บาทต่อตารางเมตร
- 1 ห้องนนอน อาคาร D ชั้น 1-28 ห้อง 29-33 เนื้อที่ 22.5 ตารางเมตร ราคา 1.06 ล้านบาท หรือประมาณ 47,100 บาทต่อตารางเมตร
- 1 ห้องนนอน อาคาร E ชั้น 1-18 ห้อง 05-15 เนื้อที่ 22.5 ตารางเมตร ราคา 1.12 ล้านบาท หรือประมาณ 49,800 บาทต่อตารางเมตร
- 1 ห้องนนอน อาคาร E ชั้น 3-18 ห้อง 30-40 เนื้อที่ 22.5 ตารางเมตร ราคา 1.16 ล้านบาท หรือประมาณ 51,600 บาทต่อตารางเมตร
- Fully Fitted
- เพดานสูง 2.4 เมตร
- จอง 5,000 บาท
- ทำสัญญา xxx บาท
- ค่ากองทุน 250 บาท/ตร.ม. (ชำระครั้งเดียวในวันโอนกรรมสิทธิ์)
- ค่าส่วนกลาง 25 บาท/ตร.ม./เดือน (จัดเก็บล่วงหน้า 12 เดือน)
- เงินประกันมิเตอร์ไฟฟ้า ขนาด 15 แอมป์ = 2,000 บาท
- ค่ารักษามิเตอร์น้ำเดือนละ 25 บาท (จัดเก็บล่วงหน้า 12 เดือน)
- เงินประกันการใช้น้ำ ต่อห้องชุด 500 บาท (ชำระครั้งเดียวในวันโอนกรรมสิทธิ์)
- ค่าน้ำยูนิตละ 15 บาท, ค่าไฟและค่าโทรศัพท์ ชำระตามการเรียกเก็บของหน่วยงานนั้นๆ
- ค่าใช้จ่ายเบ็ดเตล็ด 500 บาท (จัดเก็บครั้งเดียว)
- ค่าธรรมเนียมโอนกรรมสิทธิ์ ผู้ซื้อและผู้ขายชำระฝ่ายละครึ่ง
เจาะลึกรวบยอด
ทำเลของโครงการนี้ถือว่าเหมาะสำหรับคนที่ทำงานในย่านบางนาเลย เพราะโครงการอยู่บนถนนบางนา-ตราดเลยเดินทางได้สะดวก ใกล้ Mega Bangna, Tesco Lotus และสนามบินสุวรรณภูมิ หรือถ้าจะไป เซ็นทรัลบางน าก็ทำได้ไม่ยาก แต่ความอุดมสมบูรณ์รอบโครงการในระยะเดินได้ยังมีไม่มาก ตอนนี้ต้องพึ่งพา 7Eleven เป็นหลักไปก่อน รอจนกว่ารอบข้างจะมีการพัฒนาไปมากกว่านี้ จากโครงการสามารถใช้เส้นทางได้หลากหลายไม่ว่าจะเป็น ถนนศรีนครินทร์, ถนนกาญจนาภิเษก, มอเตอร์เวย์, ทางด่วนบางนา และทางด่วนวงแหวนอุตสาหกรรม พระราม 2
ตัวโครงการมีที่ดินเป็นเส้นตรงยาวรูปทรงสีเหลี่ยมผืนผ้า ด้านท้ายจะกว้างกว่าด้านหน้าทำให้คนที่อยู่อาคาร D และ E ต้องเดินไกลหน่อยคนที่อยู่อาคารแรกๆอย่าง A, B หรือ C จะเดินออกมาเรียกรถได้ง่ายกว่า ด้านหน้าโครงการก็มีป้ายรถเมล์และสะพานลอยให้ซึ่งการข้ามสะพานลอยบนถนนเส้นนี้เรียกได้ว่าเดินไกลครับเพราะถนนมีความกว้างมาก ถ้าใช้รถยนต์ส่นตัวก็มีที่จอดรถด้านใต้ของทุกอาคารและมีที่จอดส่วนกลางเพิ่มให้ด้วย แต่ถ้าลูกบ้านมาอยู่กันครบพื้นที่จอดรถคคงไม่เพียงพอเพราะมีแค่ประมาณ 38% เท่านั้นเอง
สำหรับการเดินทางโดยรถยนต์ ถนนเส้นหลักก็คงเป็นถนนบางนา-ตราดถ้าจะเข้าเมืองก็มีเส้นทางให้เลือกเยอะ จะใช้ถนนกาญจนาภิเษกแล้วไปเข้ามอเตอร์เวย์ไปออกพระราม 9 หรือจะใช้ทางด่วนบางนา-ตราดก็ออกจากโครงการแล้วตรงไปจนสุดก็เข้าทางด่วนแล้ว ถ้าจะไปบริเวณรามคำแหงก็ใช้เส้นศรีนครินทร์ซึ่งเส้นนี้ก็ผ่านถนนหลายสายอย่างเช่น ซอยอุกมสุข, ถนนอ่อนนุช, ถนนพัฒนาการ ไล่ไปจนชนกับถนนลาดพร้าว ถ้าจะไปบริเวณพระราม 4 ก็ใช้ถนนสุขุมวิทได้
สำหรับคนที่ไม่ใช้รถก็ยังสะดวก เพราะโครงการได้สร้างป้ายรถเมล์ไว้ให้หน้าโครงการและยังมีรถตู้วิ่งจากโครงการไปยังรถไฟฟ้า BTS สถานี อุดมสุข ด้วยส่วนค่าบริการก็ 20 บาทต่อเที่ยวเรื่องเส้นทางอื่นๆจะเปิดบริการในภายหลัง อันนี้ก็คงต้องขึ้นอยู่กับลูกบ้านว่าจะเลือกเส้นทางไหนเพิ่มเติมก็ทำเรื่องเสนอเข้าที่ประชุมเวลาประชุมประจำปีกับนิติบุคคลได้
การออกแบบ สำหรับโครงการของ LPN นั้นต้องเรียกว่าไม่หวือหวาแน่นอนเพราะออกมาหน้าตาคล้ายๆกันหมดจะแตกต่างกันก็แค่โทนสีที่ใช้ แบบห้องก็คล้ายๆกันเน้นที่จำนวนยูนิต แต่ข้อดีของโครงการ LPN คือการเอาใจใส่ลูกบ้านอย่างแท้จริงในระยะยาวครับการบริการจัดการต่างๆถือว่าทำได้ดีและอาใจใส่กับลูกบ้านพอสมควร เรื่องปัญหาต่างๆในการอยู่อาศัยทางโครงการก็นำมาปรับปรุงแก้ไข ดูได้จากการออกแบบพื้นที่ส่วนกลางต่างๆที่มีใส่รายละเอียดกับการอยู่อาศัยได้อย่างครบถ้วน มีทางลาดบริเวณทางเข้า-ออกอาคาร, ลานจอดรถ, สวนสาธารณะหรือแม้กระทั่งตัว Club House ถ้าเป็นโครงการในช่วงประมาณ 7-8 ปีก่อนทางลาดตามจุดต่างๆยังไม่มีมาให้นะครับแต่พอมีปัญหาเรื่องการใช้รถเข็นลำบากทางโครงการก็รับฟังและนำไปแก้ไข หรือจะเป็นปัญหาเรื่องการเข้า-ออกพื้นที่ส่วนกลางของบุคคลภายนอก ที่แต่ก่อนยังไม่มีการออกแบบให้มีรั่วกันสำหรับคนเดิน ความปลิดภัยจึงมีไม่มากแต่ตอนหลังก็มีการทำรั้วกั้นสำหรับคนเดินมาให้พร้อมไม่ต้องรอลูกบ้านมาแจ้งเรื่องปัญหาต่างๆ อัตราส่วนของลิฟท์ถือว่าเดินมาตรฐานไปพอสมควรแต่ก็ยังพอรับได้ถ้าเทียบกับระดับราคา
วัสดุและอุปกรณ์ที่โครงการให้มาถือว่าอยู่ในเกณฑ์มาตรฐานตามราคา ตัวห้องขายแบบ Fully-Fitted คือให้ฉากกั้นห้องนอน, ชุด Built-in ครัว(มีทั้งชุดบนและล่าง) และตู้เสื้อผ้า Built-in
สาธารณูปโภคของโครงการ มีสระว่ายน้ำ และห้อง Fitness อยู่ด้วยกันเป็นอาคารแยกออกมาอยู่ระหว่างอาคาร B และ C มีห้องสมุดให้ 2 จุดที่อาคาร A และ อาคาร B ซึ่งจัดมาให้ใหญ่พอสมควรมี Function มาให้หลากหลายตั้งแต่โซนอ่านหนังสือ, สอนหนังสือ, ดูหนัง, เล่นคอมพิวเตอร์, ห้องประชุมเล็ก ส่วนสวนสาธารณะจัดมาให้เยอะดีครับมีทั้งลานกว้างและที่ให้นั่งพักผ่อนตามจุดต่างๆ มีเครื่องออกกำลังกายให้นิดหน่อย รูปร่างหน้าตาและวัสดุที่ใช้ก็ทำออกมาได้ดี ปัญหาน่าจะอยู่ที่ปริมาณอาจไม่พอใช้งานถ้าลูกบ้านมาอยู่กันครบ หรือระดับ 80% ขึ้นไป ถ้าบริหารจัดการไม่ดีความหนาแน่นอาจสร้างปัญหาในระยะยาวได้ครับ
Judgement
การให้คะแนน ให้แบบ Weight Average โดยมุ่งหาความคุ้มค่า เทียบกับราคาที่จ่ายไป โดยมีส่วนที่พิจารณาดังนี้
ทำเล 35%, การเดินทางโดยใช้รถ 15%, การเดินทางโดยไม่ใช้รถ 15%, วัสดุ 15%, การออกแบบ 10% และสาธารณูปโภค 10%
เทียบกับราคา 47,600 บาทต่อตารางเมตร, 14/12/2013
- ทำเล 7.5/10 – โครงการติดถนนใหญ่บางนา-ตราด
- เดินทางด้วยรถ 8.0/10 – ใกล้ Mega Bangna, ใกล้วงแหวนและทางด่วน 2 เส้นทางจอดรถได้ 38%
- ไม่ใช้รถ 7.5/10 – มีรถตู้ไป BTS อุดมสุข, มีป้ายรถเมล์หน้าโครงการ
- วัสดุ 7/10 – ขายแบบห้องเปล่า มีตู้เสื้อผ้า Built-in, เคาน์เตอร์ครัว, ฉากกระจกกั้นห้องนอน วัสดุอื่นๆมาตรฐานในราคานี้
- แบบ 7.25/10 – แบบค่อนข้างลงตัวครบทุก Function แต่พื้นที่เล็กไปหน่อย
- สาธารณูปโภค 7/10 -มีสระว่ายน้ำ-ฟิตเนส อยู่ระหว่างอาคาร, มีห้องสุมด,ห้องอเนกประสงค์ที่อาคาร B สวนขนาดใหญ่รอบๆโครงการ
- SUPER ECONOMY CLASS
- 7.43 / 10.00
BOTTOM LINE
โครงการนี้เหมาะสำหรับคนที่ทำงานในย่านบางนาและไม่เน้นการใช้ส่วนกลางอย่างสระว่ายน้ำและ Fitness มีกำลังซื้อประมาณ 1 – 1.3 ล้านบาท
ถ้าเห็นว่ารีวิวนี้มีประโยชน์ ช่วยกด LIKE ให้ผมหน่อยนะครับ จะได้มีกำลังใจทำรีวิวถัดๆไปครับ
(ノ´ヮ´)ノ*:・゚✧





















































































































































































